Public amenities

Positioning
Best practice guidance for the placement and arrangement of embellishments
Site setout
See the following for further guidance:
- LIM Public amenities - Design for individual item positioning.
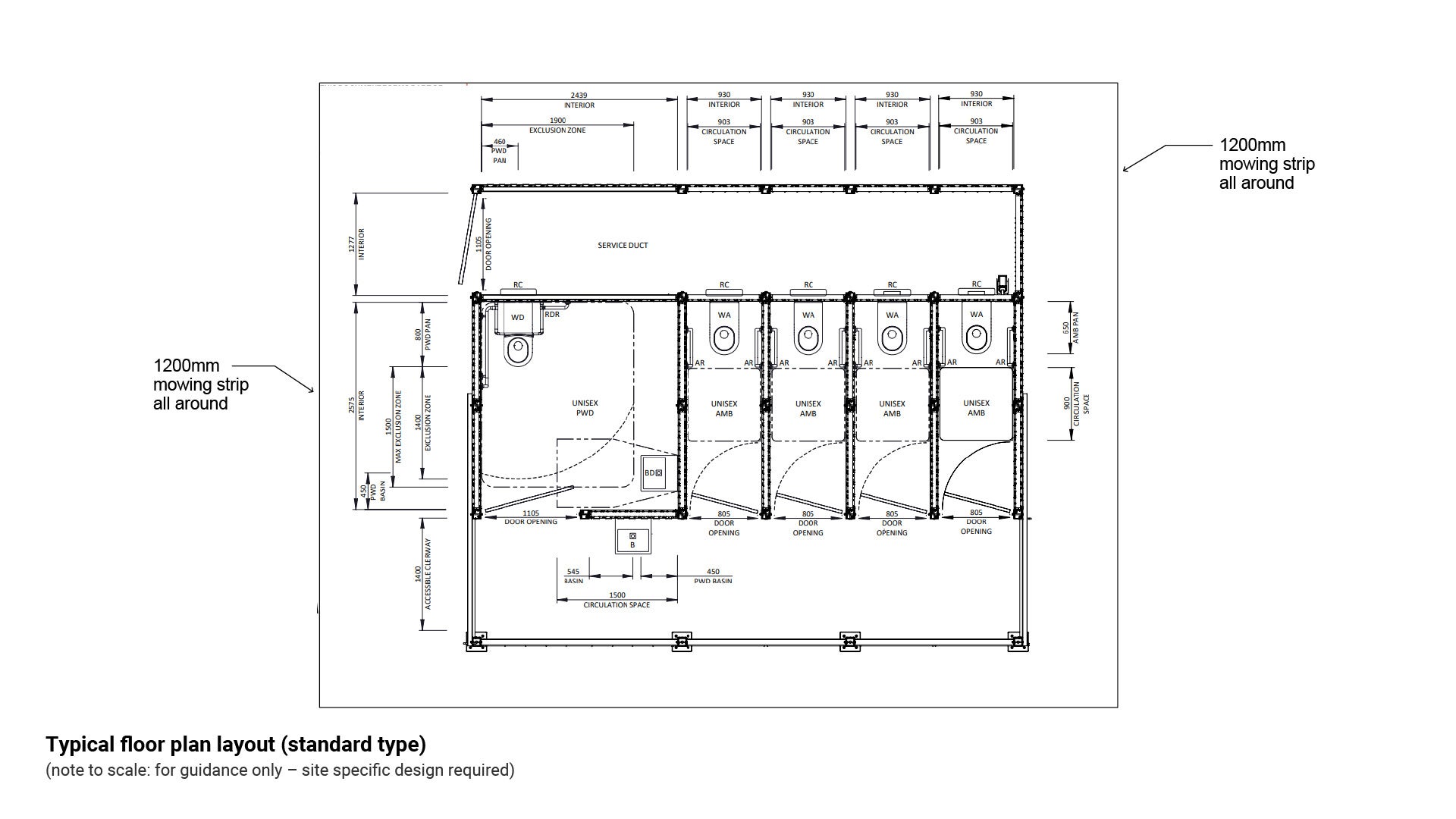
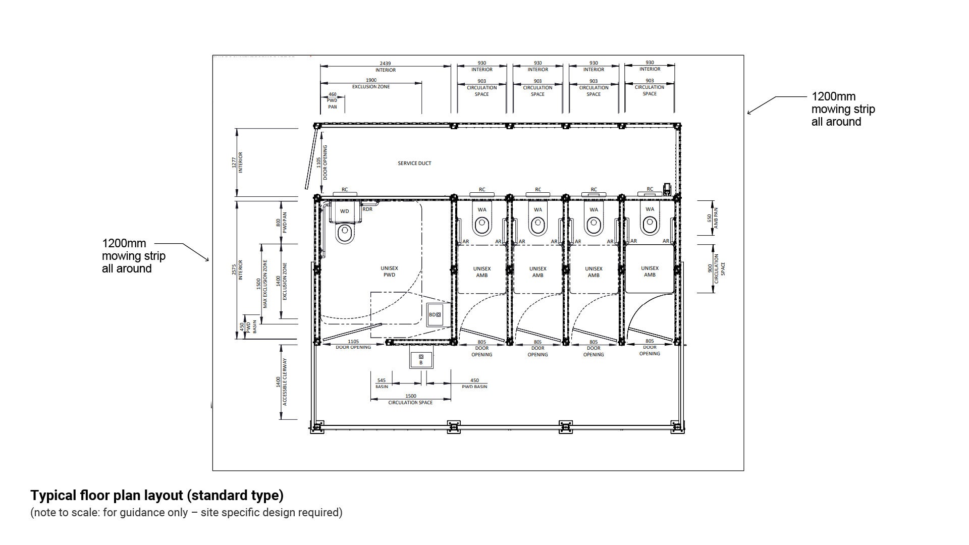
- Figure 4: Typical floor plan layout (standard type).
Figure 4: Typical floor plan layout (standard type)

Safety
- Crime Prevention through Environmental Design (CPTED) principles apply.
Clearances
See Table 3: Positioning guidance offsets.
Table 3: Positioning guidance offsets
Embellishment | Distance from | Minimum distance | Reason |
Public building | Outdoor ashtray | 5.0 m (see LIM Bins) | Tobacco and Other Smoking Products Act 1998 and regulations |
Concrete slab | Other items | 2.5 m |
|
This component is currently in development